2 slaapkamer appartement met koer en garagestaanplaats
Vraagprijs
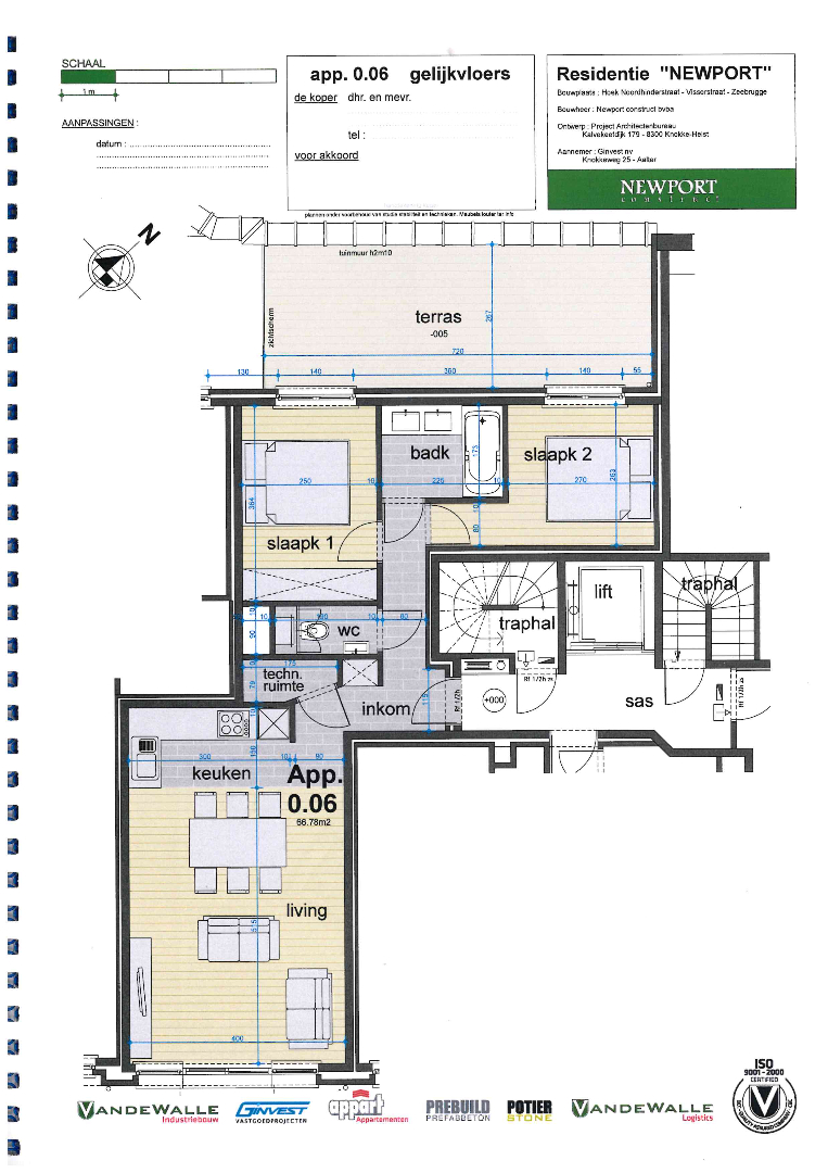
Dit appartement is gelegen te Zeebrugge, vlakbij de rederskaai en een vlotte verbinding richting Brugge, Knokke en Blankenberge.
het appartement bestaat uit een inkomhal met toilet, een woonkamer met open keuken, een terras/koer, een badkamer, een berging met aansluitingen WM en DK, twee slaapkamers.
Ondergrondse autostaanplaats inclusief
het appartement bestaat uit een inkomhal met toilet, een woonkamer met open keuken, een terras/koer, een badkamer, een berging met aansluitingen WM en DK, twee slaapkamers.
Ondergrondse autostaanplaats inclusief